ORLEANS RESIDENCE
Project Location: Chicago, Illinois
When you have a great client and a remarkable building to work with, the project more or less designs itself. This vintage brick two-story home possessed undeniable character, but it required an extensive overhaul to meet the needs of modern living. While the clients appreciated elements of the historic layout — the proportions, the craftsmanship, the sense of permanence — they envisioned a contemporary evolution that would honor the past while preparing the home for the future.
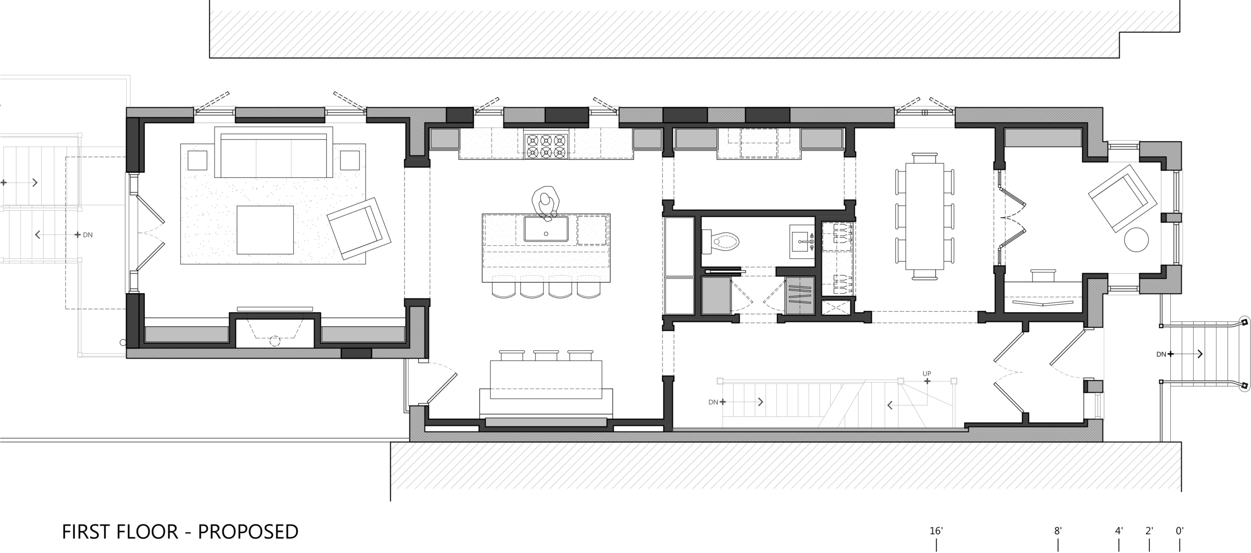
Our design approach carefully balanced preservation and reinvention. Original architectural details were restored and celebrated, while new interventions were introduced with clarity and restraint. We reimagined the floor plan to improve flow, bring in natural light, and create meaningful connections between gathering spaces. Thoughtful material selections ensured that old and new elements felt cohesive rather than contrasting.
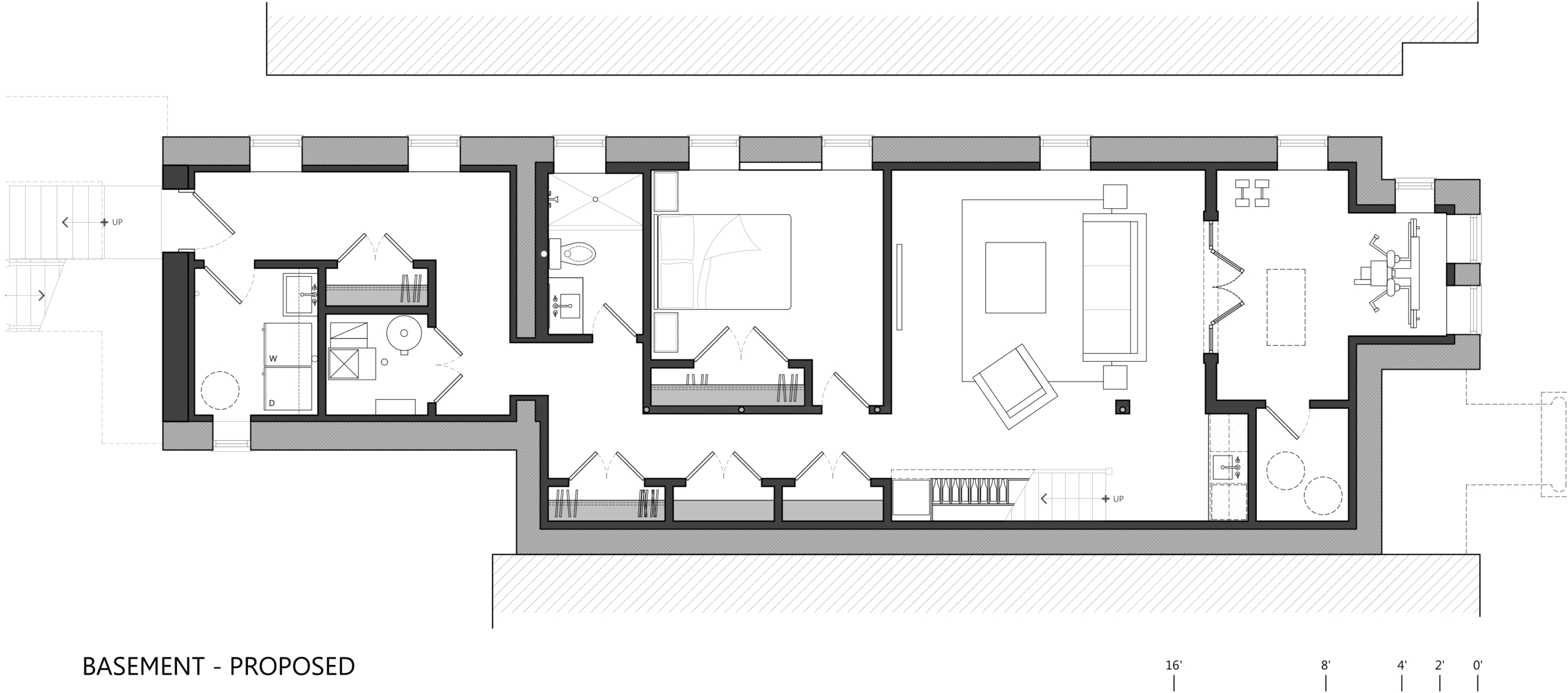
Modern systems were seamlessly integrated to enhance comfort and efficiency without compromising the home’s historic charm. The kitchen and living areas were transformed into light-filled, welcoming spaces designed for both daily life and entertaining. Private spaces were reconfigured to provide greater flexibility and long-term livability.
Throughout the process, collaboration was key. Our planning and architectural framework established a strong foundation tailored to the clients’ lifestyle, while London and her interior design team layered in warmth, texture, and personality — ultimately turning a restored structure into a true home. The result is a timeless residence that respects its heritage while confidently embracing contemporary living.
Architectural: Deconstruct Architecture
General Contractor: Domain Construction
Interior Design: London Walder Interior Design
Photographer: Ryan McDonald


















